Новая архитектура » Расчет подпорных стен

Расчет подпорных стен

Страница 1

Подпорные стены

Подпорные стены представляют собой конструкции, удерживающие от обрушения находящийся за ними массив грунта и воспринимающие расположенные на его поверхности нагрузки. Их используются для ограждения откосов, насыпей, террас, набережных устоев мостов, котлованов и т.д.

По конструктивному решению подпорные стены подразделяют гравитационные (жесткие) и гибкие. Гравитационные подразделяются на массивные и тонкостенные. Устойчивость массивных стен при расчете на сдвиг обеспечивается её массой. В тонкостенных, кроме массы стен, в расчёт включается и масса удерживаемого стеной грунта.

Материал подпорных стен в основном – бетон и железобетон.

При недостаточных размерах стены и некоторых сочетаниях нагрузок, действующих на неё, могут возникнуть предельные состояния подпорной стены.

Так, при некотором значении, нагрузки могут вызвать такие перемещения стены, что произойдёт плоский сдвиг по поверхности основания (сдвиг по подошве стены) или сдвиг по некоторым другим криволинейным поверхностям вместе с грунтом основания.

При расчётах стен, для упрощения, в одних случаях криволинейную поверхность сдвига заменяют ломанной плоской (сдвиг по ломанным поверхностям скольжения)в других принимают кругло-цилиндрический.

Кроме сдвига стены может произойти её опрокидывание. Во всех этих случаях стена теряется устойчивость, т.е. наступает её предельное состояние.

При недостаточно прочном основании стена может потерять устойчивость при его разрушении с выпиранием грунта из-под подошвы и даже опрокидыванием стены в сторону грунта засыпки.

Предельным состоянием стены нужно также считать развитие в её основании недопустимо больших, по условиям эксплуатации, перемещений в виде осадок и кренов.

Предельному состоянию соответствует и нарушение прочности материала самой стены, связанное с появлением недопустимых напряжений и трещин.

Исходные данные

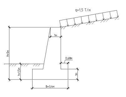
Підпис: Рисунок 1. Схема подпорной стены.

Таблица 1. Исходные данные грунтов

Показатель

Значение

ρ, т/м3

1,65

ρS, т/м3

2,66

W

0,15

v

0,27

φ, град

31

E, МПа

27

q, т/м

1,5

d>5

-

5-2

11

2-0,5

26

0,5-0,25

10

0,25-0,1

43

<0,1

10

ρ, град

10

, град

10

Оценка грунтов и грунтовой обстановки

а) Наименование по гранулометрическому составу.

, где

Песок мелкий (т.к. >0,1мм составляет >75%)

б) По степени неоднородности гранулометрического состава

, неоднородные (т.к. )

в) Плотность сложения – по величине коэффициента пористости е.

(песок рыхлый)

Где ρ – плотность грунта в естественном состоянии; ρs– плотность минеральной части грунта.

г) Степень водонасыщения – по степени влажности Sr.

, где

Маловлажные (т.к. Sr0.5).

Вывод: Песок мелкий, неоднородный, рыхлый, маловлажный.

Аналитическое определение активного давления на подпорную стену

На подпорную стену действует давление грунта нарушенного сложения, характеристики которого определяться через соответствующие характеристики грунта ненарушенного сложения следующими соотношениями.

Страницы: 1 2 3 4 5 6

Смотрите также:

Проверка возможности конденсации влаги внутри ограждающей конструкции
Проверка проводится графическим способом. Для этого: а) по оси абсцисс в выбранном масштабе откладываются последовательно сопротивления паропроницанию всех слоев конструкции Rvp(п ...

Основные этапы реализации адресной программы «развитие застроенных территорий в Санкт-Петербурге»
I. Проведение аукциона на право заключения договора о развитии застроенных территорий. II. Подготовка проекта планировки и межевания застроенной территории, в котором содержится п ...

Жилище в стиле техно

Этот стиль, возникший в 80-е годы прошлого столетия, как некий ироничный ответ на радужные перспективы индустриализации и господства технического прогресса, провозглашенные в его начале.

Категории

Copyright © 2026 - All Rights Reserved - www.padavia.ru