Новая архитектура » Строительство здания "Реабилитационный центр" » Расчет рамы методом заменяющих рам

Расчет рамы методом заменяющих рам

Страница 8

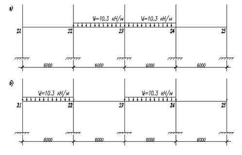
Для определения изгибающих моментов от временной нагрузки распологаем последнюю через один пролет для получения максимального пролетного момента и в двух смежных пролетах для получения максимального пролетного момента.

Приняв для расчета и конструирования колонну нижнего этажа по оси «3», производим загрузку временной нагрузкой только ригель по узлам 21-22-23-24-25.

Моменты защемления:

Моп=

Рисунок 5.2. Схемы загружения временной нагрузкой

Таблица 5.6. Изгибающие моменты от временной нагрузки по схеме А.

Узлы

21

22

23

24

25

Стержни

21-В

21-Н

21-22

22-21

22-В

22-Н

22-23

23-22

23-В

23-Н

23-24

24-23

24-В

24-Н

24-25

25-24

25-В

25-Н

к

0,274

0,274

0,452

0,311

0,189

0,189

0,311

0,311

0,189

0,189

0,311

0,311

0,189

0,189

0,311

0,452

0,274

0,274

Моп

-

-

-

-

-

-

+31,0

-31,0

-

-

+31,0

-31,0

-

-

-

-

-

-

1 цикл

-

-

-

-9,6

-5,9

-5,9

-9,6

-

-

-

-

+9,6

+5,9

+5,9

+9,6

-

-

-

-

-

-4,8

-

-

-

-

-4,8

-

-

+4,8

-

-

-

-

+4,8

-

-

2 цикл

+1,3

+1,3

+2,2

-

-

-

-

-

-

-

-

-

-

-

-

-2,2

-1,3

-1,3

-

-

-

+1,1

-

-

-

-

-

-

-

-

-

-

-1,1

-

-

-

3 цикл

-

-

-

-0,3

-0,3

-0,3

-0,3

-

-

-

-

+0,3

+0,3

+0,3

+0,3

-

-

-

Итого

+1,3

+1,3

-2,6

-8,8

-6,2

-6,2

+21,1

-35,8

-

-

+35,8

-21,1

+6,2

+6,2

+8,8

+2,6

-1,3

-1,3

Страницы: 3 4 5 6 7 8 9 10 11

Смотрите также:

Технологии и этапы строительства загородных домов
Этапы строительства загородных домов: 1-ый этап - возведение «коробки» (тепловой контур) коттеджа или дома (от нескольких месяцев до полугода). Стоимость возведение «коробки» (теп ...

Теоретические основы судебной строительно-технической экспертизы объектов недвижимости. Правовое регулирование судебно-экспертной деятельности в РФ
Правовой основой государственной судебно - экспертной деятельности являются Конституция Российской Федерации, Федеральный закон №73 от 31.05.2001г., Гражданский процессуальный код ...

Жилище в стиле техно

Этот стиль, возникший в 80-е годы прошлого столетия, как некий ироничный ответ на радужные перспективы индустриализации и господства технического прогресса, провозглашенные в его начале.

Категории

Copyright © 2026 - All Rights Reserved - www.padavia.ru