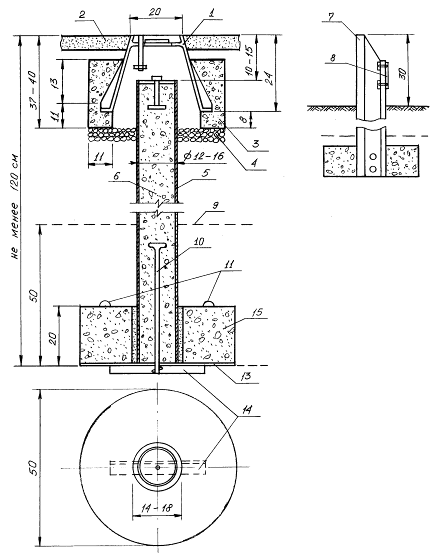
Геодезический знак, предназначенный для установки в песчаных, суглинистых и глинистых грунтах сезонного промерзания, должен состоять из двух частей: якоря, обеспечивающего устойчивость знака, и верхней части, несущей точку (марку) с известными координатами, или точку (репер) с известной высотой. Близкое расположение марки (репера) к поверхности земли облегчает пользование знаком.
Якорь может представлять собой или бетонный монолит, или бетонную плиту массой около 100…150 кг, с которой жестко соединяется верхняя часть знака. Верхняя часть знака обычно состоит из металлической трубы диаметром 6…8 см, в верхнем срезе которой жестко закреплена марка, фиксирующая положение центра или репера, рис. 3.1. Марка закрывается чугунным колпаком с крышкой.
На незастроенных территориях или где невозможна закладка стенного знака и при близком расположении скальных пород (глубина до 0,8 м) устанавливают марки, конструкции которых приведенные на рис. 3.2. Для их устройства в скале делают небольшое углубление, в котором цементируют марку. Над маркой на бетонной подушке устанавливают бетонный монолит в виде усеченной четырехгранной пирамиды. Высота монолита назначается такой, чтобы марка, вбетонированная в его верхнее основание, оказалась на уровне поверхности земли. Верхняя и нижняя марки должны находится на одной вертикали.
В условиях застройки для закрепления геодезических сетей используют центры, которые «пристреливают» или закрепляют к стене или цоколю здания, рис. 3.3, 3.4.
 
 
Рис. 3.1. Центр пункта триангуляции, трилатерапии и полигонометрии 2, 3, 4-го классов, устраиваемый в городских условиях
 
 
Рис. 3.2. Центр пункта триангуляции, трилатерации, полигонометрии, устраиваемый в скальных грунтах.
1 – бетонный монолит; 2 – скальный грунт;
3 – бетонная подушка; 4 – бетонная плита.
 
 
Рис. 3.3. Стенной знак пункта полигонометрии 2 – 4-го классов.
1 – начальные буквы наименования организации, проводящей геодезические работы; 2 – отверстие для установки визирного приспособления.
 
 
Рис. 3.4. Стенной знак пункта полигонометрии 2 – 4-го классов и 1-го и 2-го разрядов.
1 – отверстие Æ 2 мм; 2 – начальные буквы организации (Главное Управление Геодезии и Картографии); 3 – стакан из малоуглеродистой стали; 4 – номер знака; 5 – дюбель-гвоздь.
 
 
Рис. 3.5. Наземный рабочий центр
1 – дюбель-гвоздь; 2 – шаровый диск; 3 – начальные буквы названия организации, установившей знак.
Наземные рабочие центры геодезических сетей закрепляют путем их «пристреливания» к дорожному покрытию или обетонирования в местах без твердого покрытия, рис. 3.5.
Узел усиления. Содержание
и ремонт цементно-бетонного пола
	  ...
	
Уточнение собственного веса ГБ
	 Для того, что бы последствии правильно собрать нагрузки на колонну при её статическом расчёте, необходимо уточнить нагрузку от собственного веса ГБ, принятую ориентировочно при ст ...