Новая архитектура » Проектирование промышленного здания » Выбор последовательности сборки конструкций и варианта монтажных кранов

Выбор последовательности сборки конструкций и варианта монтажных кранов

По степени укрупнения конструкции принимаем поэлементный монтаж.

По способу установки конструкций в проектное положение:

– свободный монтаж.

По последовательности установки конструкций применяем смешанный метод монтажа:

– монтаж колонн, ригелей, подкрановых балок, плит перекрытия и стеновых панелей выделяем в самостоятельный поток (раздельный метод);

– монтаж элементов покрытия (плиты покрытия и балки покрытия) производим в одном потоке в пределах одной ячейки здания (комплексный метод).

По организации монтажных работ - монтаж с раскладкой элементов в зоне действия крана, благодаря этому повышается выработка монтажных кранов.

В зависимости от точности установки конструкций на опоры применяем монтаж с выверкой конструкций перед окончательным закреплением.

По расположению монтажных кранов:

– односторонне расположение крана - монтаж стеновых панелей;

– в пределах контура здания - монтируем все остальные конструкции.

По направлению развития монтажного фронта работ – продольный метод монтажа.

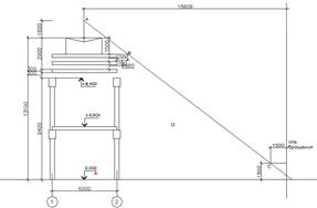
Рисунок 3 – Монтаж ригелей

Рисунок 4 – Монтаж колонн первого этажа

Рисунок 5 – Монтаж колонн второго этажа

Рисунок 6 – Монтаж плит перекрытия

Рисунок 7 - Монтаж балок покрытия

Рисунок 8 – Монтаж подкрановых балок

Рисунок 9 – Монтаж плит покрытия

Рисунок 10 – Монтаж стеновых панелей

Смотрите также:

Нормы освещения
Основная задача освещения городских территорий – обеспечение условий для безопасного движения транспорта и пешеходов. Важными факторами, влияющими на реакцию водителей транспорта, ...

Ландшафтный дизайн: Классификация и виды наиболее распространенных малых архитектурных форм
К сфере садовой архитектуры относятся любые искусственные объекты, применяемые в ландшафтном дизайне. Это садово-парковые здания, павильоны, беседки, дорожки, мостики, террасы, по ...

Жилище в стиле техно

Этот стиль, возникший в 80-е годы прошлого столетия, как некий ироничный ответ на радужные перспективы индустриализации и господства технического прогресса, провозглашенные в его начале.

Категории

Copyright © 2026 - All Rights Reserved - www.padavia.ru